Обяви 0 За нас Контакти
Продава 2-СТАЕН
град Пловдив, Беломорски
78 199 €
152 943.95 лв.

(832 €, 1 627.25 лв./m2)
Цената е с включено ДДС
История на цената
Коригирана в 17:23 на 13 май, 2026 год.
Обявата е посетена 1279 пъти.
Площ:
94 m2
Етаж:
Партер от 4
Строителство:
Тухла, Ще бъде въведен в експлоатация 2028 г.

Описание на имота:


Референтен номер: 2326.
БЕЗ КОМИСИОННА ОТ КУПУВАЧА

ПРОМОЦИОНАЛНА ЦЕНА ДО КРАЯ НА ГОДИНАТА



ДВУСТАЕН ПАРТЕРЕН АПАРТАМЕНТ КВ. БЕЛОМОРСКИ

НОВОИЗГРАЖДАЩА СЕ МАЛКА СГРАДА С МАЛЪК ПРОЦЕНТ ОБЩИ ЧАСТИ

ГЪВКАВА И УДОБНА СХЕМА НА ПЛАЩАНЕ

Основни характеристики:

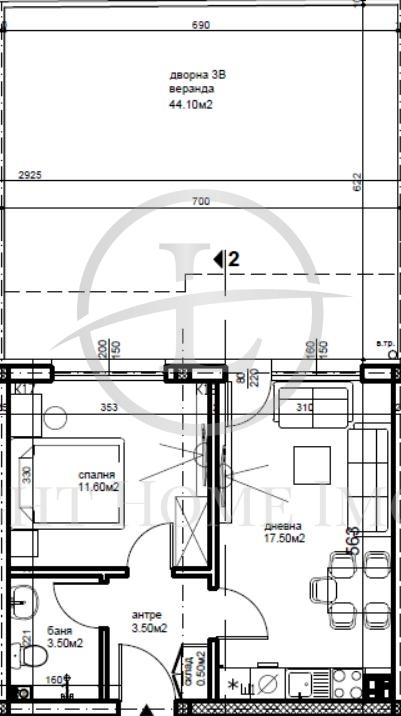
-Площ- 50кв.м. двор 44кв.м.

-Разпределение- хол с кухненски бокс, спалня, баня с тоалетна, склад, входно антре и партерна веранда 44кв.м.

-Изложение- Запад

-Етажност- Партер от 4

-Паркиране- Възможност за покупка на паркомясто или гараж

Всички жилища ще се издават на степен на завършеност шпакловка и замазка ВиК до тапа и Ел инсталация доключ.

Утвърден във времето строител с множество завършени сгради.

За повече информация и организиране на огледи, моля, свържете се с нас на посочения номер, като ще Ви е необходим следният референтен номер: 2326



Лайт Хоум имоти е доверен партньор на най-големите банкови институции в страната и съдейства за преференциални условия при нужда от кредитиране. Ще получите юридическо съдействие през целия процес на сделката, както и съдействие при подготовка, подаване и получаване на всички необходими документи за сделката.
Особености
Тухла
Асансьор
Видео наблюдение
Интернет връзка
За контакт:
0897220017
Брокер:
Ивилин Ковачев
0897220017
Офис: гр. Пловдив пл. Житен Пазар 7
Още оферти от брокера: Продава | Дава под наем | Купува | Наема
Агенция:
ЛАЙТ ХОУМ ИМОТИ
0897220032
ЛАЙТ ХОУМ ИМОТИ logo
В imot.bg от 2024 г.
lighthomeimoti.imot.bg
Адрес:
област Пловдив, гр. Пловдив, пл.Житен пазар 7
ИЗПРАТИ ЗАПИТВАНЕ
ИЗПРАТИ ЗАПИТВАНЕТО

Продава 2-СТАЕН
град Пловдив, Беломорски
Обява: 1b175871119517657

78 199 €
152 943.95 лв.
История на цената
(832 €, 1 627.25 лв./m2)

Цената е с включено ДДС
ЗАПАЗИ ОБЯВАТА

Местоположение: град Пловдив, Беломорски

Допълнителни данни за имотите в района и сравнение с други райони

Покажи

Период

и 5 месеца

* Средните цени са определени чрез медианна стойност