Обяви За нас Контакти
Продава 2-СТАЕН
град Пловдив, Христо Смирненски
109 824 €
214 797.07 лв.

(1 408 €, 2 753.81 лв./m2)
Цената е с включено ДДС
История на цената
Публикувана в 14:29 на 29 януари, 2026 год.
Обявата е посетена 18 пъти.
Площ:
78 m2
Етаж:
8-ми от 10
Строителство:
Тухла, 2028 г.

Описание на имота:


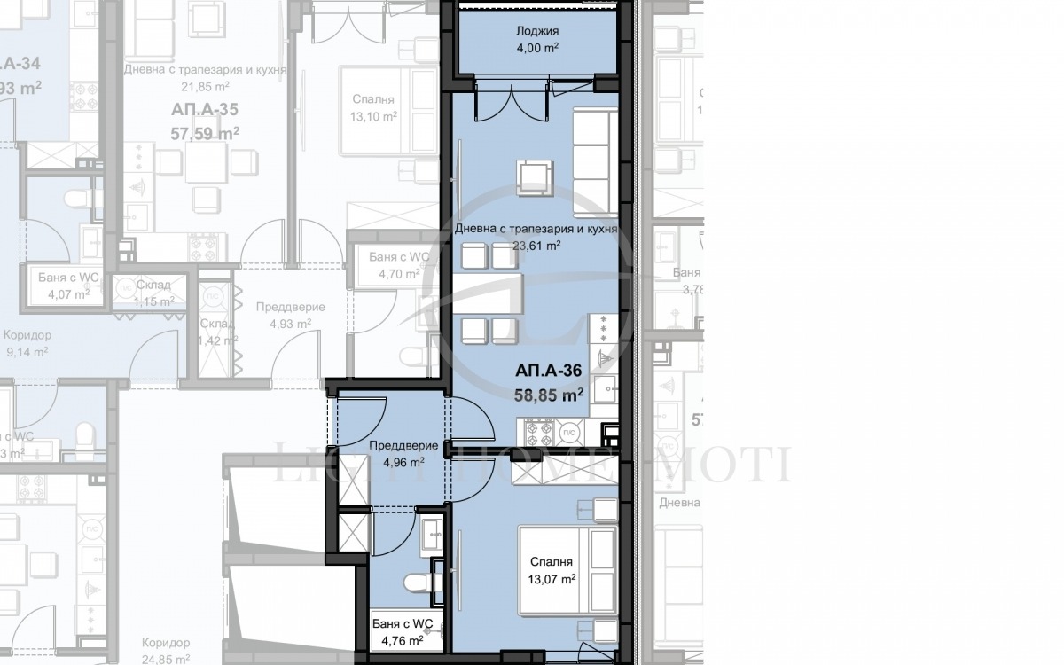
Референтен номер: 3514.
Нова сграда в кв. Христо Смирненски! ДОКАЗАН ИНВЕСТИТОР!
Апартаменти директно от инвеститор ! Атрактивни стартови цени !

БЕЗ КОМИСИОННА! НОВ МОДЕРЕН КОМПЛЕКС! ЕТАП 3 ! ГЪВКАВИ СХЕМИ НА ПЛАЩАНЕ! СИСТЕМА ЗА ФИЛТРАЦИЯ НА ВОДА! ПРОЕКТА ПРЕДЛАГА 100% ОСИГУРЕНО ПАРКИРАНЕ С НАДЗЕМНИ И ПОДЗЕМНИ ПАРКОМЕСТА И ГАРАЖИ! ПЛАТИ 20% СЕГА, 80% НА АКТ 16!

Предлагаме ви да закупите ДВУСТАЕН АПАРТАМЕНТ в НОВА МОДЕРНА СГРАДА С ВИСОКОКАЧЕСТВЕНО СТРОИТЕЛСТВО,ЧАСТ ОТ ДОБРЕ РАЗВИВАЩ СЕ КОМПЛЕКС С МНОГО ЗЕЛЕНИ ПЛОЩИ!

Основни характеристики на имота:

-Площ: 77,89 кв.м

- Разпределение: Просторен и светъл хол с кухненски кът, голяма спалня , входно антре, баня с тоалетна, и тераса. Към апартамента има прилежащо избено помещение 4,62кв.м

- Вид строителство: Тухла,Ново

- Изложение: Северен

- Етажност: 8 от 10

- Паркирване: Възможност за закупуване на подземно паркомясто или гараж.

Състояние на имота: Апартамента ще бъде издаден на шпакловка и замазка,което ви позволява да го отремонтирате и обзаведете по свой собствен вкус.

Гъвкави Схеми на плащане:

СТОП КАПАРО 2500€ 20% ПД 80% АКТ 16

Отстъпка 50€ /кв.м СТОП КАПАРО 2500€ 25% ПД 25% АКТ 14 25% ПОСТАВЕНА ДОГРАМА 25% АКТ 16

Отстъпка 50€ /кв.м СТОП КАПАРО 2500€ 30% ПД 30% АКТ 14 30% ПОСТАВЕНА ДОГРАМА 10% АКТ 16

Отстъпка 50€ /кв.м СТОП КАПАРО 2500€ 20% ПД 20% КОТА 0 20% АКТ 14 20% ПОСТАВЕНА ДОГРАМА 20% АКТ 16

Отстъпка 60€/ кв.м СТОП КАПАРО 2500€ 30% ПД 50% АКТ 14 10% АКТ 15 10% АКТ 16

Отстъпка 60€/ кв.м СТОП КАПАРО 2500€ 20% ПД 70% АКТ 14 10% АКТ 16

Отстъпка 20 €/ кв.м СТОП КАПАРО 2500€ 20% ПД 70% АКТ 15 10% АКТ 16



Локация: Намира се на комуникативна локация в кв. Христо Смирненски, в нов етап от утвърден жилищен комплекс, в непосредствена близост до Гребната база – една от най-зелените и предпочитани зони за живеене в града.

За повече информация и организиране на огледи, моля, свържете се с нас на посочения номер, като ще Ви е необходим следният референтен номер: 3514



Лайт Хоум имоти е доверен партньор на най-големите банкови институции в страната и съдейства за преференциални услов
Особености
Тухла
Асансьор
Интернет връзка
За контакт:
0897220078
Брокер:
Таня Динева
0897220078
Офис: гр. Пловдив пл. Житен Пазар 7
Още оферти от брокера: Продава | Дава под наем | Купува | Наема
Агенция:
ЛАЙТ ХОУМ ИМОТИ
0897220032
ЛАЙТ ХОУМ ИМОТИ logo
В imot.bg от 2024 г.
lighthomeimoti.imot.bg
Адрес:
област Пловдив, гр. Пловдив, пл.Житен пазар 7
ИЗПРАТИ ЗАПИТВАНЕ
ИЗПРАТИ ЗАПИТВАНЕТО

Продава 2-СТАЕН
град Пловдив, Христо Смирненски
Обява: 1b176968975080975

109 824 €
214 797.07 лв.
История на цената
(1 408 €, 2 753.81 лв./m2)

Цената е с включено ДДС
ЗАПАЗИ ОБЯВАТА

Местоположение: град Пловдив, Христо Смирненски

Допълнителни данни за имотите в района и сравнение с други райони

Покажи

Период

и 1 месец

* Средните цени са определени чрез медианна стойност